How Wide Are Roof Truss Cords

Truss Order Information Rigidply Rafters

Truss Order Information Rigidply Rafters

Roof Trusses Country Truss Llc

Roof Trusses Country Truss Llc

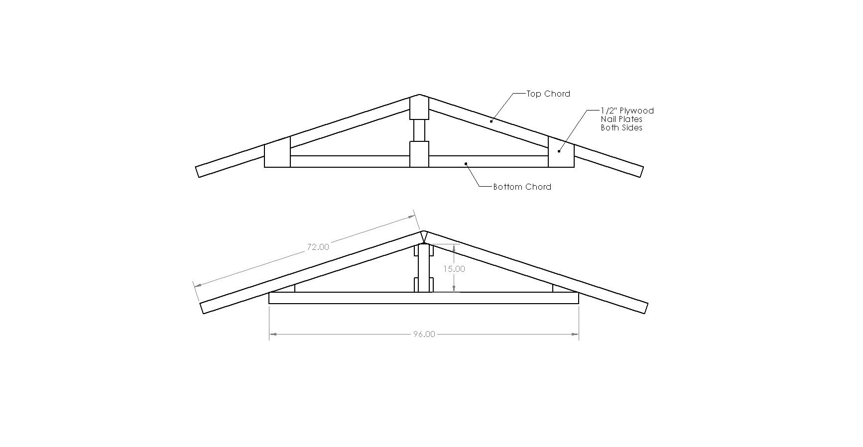
Roof Trusses Dimensioning Endo Truss

Roof Trusses Dimensioning Endo Truss

Roof Trusses Best Way To Frame

Roof Trusses Best Way To Frame

Medeek Design Inc Common Trusses

Medeek Design Inc Common Trusses

The Complete Guide To Roof Trusses Design Cost Framing More

The Complete Guide To Roof Trusses Design Cost Framing More

The Complete Guide To Roof Trusses Design Cost Framing More

Removal has left them extremely vulnerable to collapse due to spreading especially under snow loads but also under just the load of the roof itself.

How wide are roof truss cords.

Parallel chord trusses allow for greater interior clearance in buildings. I upper chord members. The offset scissor truss has a bottom chord that is flat for a distance and then is vaulted up and back down. The roof system is basically a hinge now.

Steeper roof pitches require longer webs which add to the cost. When a roof is to be provided for a building which does not have interior supports and the exterior walls are more than 12 m apart a roof truss will be a convenient arrangement to support the roof. 500 sycamore street p o. A roof truss consists essentially of the following components.

These are attached to the horizontal beam thus making up the triangle s base. Components of a steel roof truss. These steel joints are needed to support the overall truss. The more complex the truss framework is the greater quantity of these joints will be required.

The exact height of the truss will depend on the height of the roof. The same thing is true for the bridge of the truss. The bottom chord of the truss will need to be the same length as the floor of the shed plus 0 25 inches to ensure a proper fit. If you re adding a truss to a flat roof you ll have some control over what slope you want.

Top chord live load snow and other temporary loads top chord dead load roofing materials weight of the truss itself other permanent items attached to the roof bottom chord live load storage and bottom chord dead load insulation ceiling. This 26 span truss with a 4 12 roof pitch is the most economical truss we can build. Typically the upper chords have different lengths in this particular type of truss that make the apex off center. Bottom chords is at least 3 12 or the bottom chord pitch is no more than half the top chord pitch.

Its conventional triangular truss design is that the two sides are sloping up to the apex above with the struts known as the upper chords leading down from it. The partial scissor truss is similar except that the bottom chord slopes up in one direction and then straight down while the remaining portion is flat. Finally the truss calculator will compute the best dimensional method to connect the pieces of the truss with steel joints and a bridge. If we go any larger it will require more webbing inside the truss which will directly affect the cost of the truss.

Truss capacity is listed by pounds per square foot based on the following load rating criteria. The same is true if we make it steeper.

Wide Span Roof Truss System Using Cold Formed Steel Download Scientific Diagram

Wide Span Roof Truss System Using Cold Formed Steel Download Scientific Diagram

Roof Truss Buying Guide Truss Roof

Roof Truss Buying Guide Truss Roof

Types Of Prefab Roof Trusses

Types Of Prefab Roof Trusses

Truss Question For Vaulted Ceilings

Truss Question For Vaulted Ceilings

Parallel Chord Pallet Trusses Mother Earth News Earth Homes Pallet Building Roof Insulation

Parallel Chord Pallet Trusses Mother Earth News Earth Homes Pallet Building Roof Insulation

Different Types Of Roof Roof Trusses And Their Components Engineering Basic Roof Trusses Roof Truss Design Roof Shapes

Different Types Of Roof Roof Trusses And Their Components Engineering Basic Roof Trusses Roof Truss Design Roof Shapes

Roof Truss Terminology

Roof Truss Terminology

Fromthearmchair Lean To Roof Truss Design Roof Truss Design Roof Trusses Shed Roof Design

Fromthearmchair Lean To Roof Truss Design Roof Truss Design Roof Trusses Shed Roof Design

Appreciation Of Loads And Roof Truss Design Ppt Video Online Download

Appreciation Of Loads And Roof Truss Design Ppt Video Online Download

Terms Of The Trade What Is A Bottom Chord Doityourself Com

Terms Of The Trade What Is A Bottom Chord Doityourself Com

Medeek Design Inc Truss Gallery Roof Truss Design Attic Truss Roof Trusses

Medeek Design Inc Truss Gallery Roof Truss Design Attic Truss Roof Trusses

Attic Truss Types Of Attic Roof Trusses View Larger Attic Truss Attic Truss Design Dimensions Roof Truss Design Attic Truss Roof Trusses

Attic Truss Types Of Attic Roof Trusses View Larger Attic Truss Attic Truss Design Dimensions Roof Truss Design Attic Truss Roof Trusses

Building Roof Trusses Backyard Chickens Learn How To Raise Chickens

Building Roof Trusses Backyard Chickens Learn How To Raise Chickens

The Roof Trusses Are Placed 3 Ft O C Assume That Chegg Com

The Roof Trusses Are Placed 3 Ft O C Assume That Chegg Com

Roofs And Ceilings Scissor Truss Roof Trusses Roof Truss Design

Roofs And Ceilings Scissor Truss Roof Trusses Roof Truss Design

Parallel Chord Truss Vaulted Roof Greenbuildingadvisor

Parallel Chord Truss Vaulted Roof Greenbuildingadvisor

What Are The Components Of Roof Truss Quora

What Are The Components Of Roof Truss Quora

Https S3 Amazonaws Com Suncam Docs 219 Pdf

Https S3 Amazonaws Com Suncam Docs 219 Pdf

Https Encrypted Tbn0 Gstatic Com Images Q Tbn 3aand9gcqrlffi4dnyyntnmhnl0djxunbhvmfoqogiasut2w59sbc3tmn4 Usqp Cau

Https Encrypted Tbn0 Gstatic Com Images Q Tbn 3aand9gcqrlffi4dnyyntnmhnl0djxunbhvmfoqogiasut2w59sbc3tmn4 Usqp Cau

Architectural Roof Trusses Woodsolutions

Architectural Roof Trusses Woodsolutions

Parallel Chord Scissor Truss Google Search Pole Barn House Plans Scissor Truss Pole Barn Homes

Parallel Chord Scissor Truss Google Search Pole Barn House Plans Scissor Truss Pole Barn Homes

2020 Roof Truss Prices Costs To Set Scissor Attic Trusses Homeadvisor

2020 Roof Truss Prices Costs To Set Scissor Attic Trusses Homeadvisor

A Roof Truss Is A Structural Unit Designed To Frame A Roof And To Support The Roof Material Interior Ceiling Insul Roof Truss Design Roof Trusses Roof Design

A Roof Truss Is A Structural Unit Designed To Frame A Roof And To Support The Roof Material Interior Ceiling Insul Roof Truss Design Roof Trusses Roof Design

This Estimating Spreadsheet Is Specifically Created For Designing Truss By Using This Spreadsheet One Can Design Li Roof Truss Design Roof Trusses Spreadsheet

This Estimating Spreadsheet Is Specifically Created For Designing Truss By Using This Spreadsheet One Can Design Li Roof Truss Design Roof Trusses Spreadsheet

Source : pinterest.com